Welcome To
578 Kingston Rd W
Character Without Compromise: A Fully Upgraded Commercial Opportunity on Kingston Rd W near Pickering Village
Send This Listing To A FriendThere are commercial properties that look interesting. And there are commercial properties that function properly.
578 Kingston Rd W does both — and it does so with documentation to support it.
Positioned on a 66 x 150 ft lot in Central West Ajax, this VC3-zoned (Village Core Mixed-Use) property offers the flexibility many operators need but rarely find. The exterior improvements were completed under an approved site plan, including organized parking, hardscaping, landscaping, a wraparound porch, accessible rear ramp, and reconfigured entry. The site plan was finalized in 2017, meaning what you see here isn’t conceptual — it’s permitted and complete.
For a growing business, logistics matter as much as aesthetics. At the rear, there are nine surface parking spaces including a dedicated accessible space, along with a heated, two-car detached garage/workshop/on-site storage space built as part of the site plan. The current layout accommodates two cars, but a third vehicle could be accommodated by removing the storage area. The shared driveway on this side was intentionally widened to accommodate large 18-wheeler delivery trucks, removing a common operational constraint. There is also approved signage on both the front and side elevations, with integrated lighting on timers for consistent, professional visibility.
From the street, the building carries presence. Originally constructed as a barn, the structure retains continuous barn boards that run from floor to roof without joints—a level of structural integrity that simply doesn’t exist in typical light-frame construction. Inside, the main floor was opened to create cathedral ceilings and a loft aligned with the roofline, allowing natural light to move consistently throughout the space. The result is volume and brightness without sacrificing character.
Critically, this isn’t character-building with outdated infrastructure hiding behind drywall. The roof was replaced in 2019. Windows and exterior doors were installed in 2021. Mechanical systems, electrical panel upgrades, plumbing supply and drain lines, insulation, and drainage improvements have all been addressed. HVAC is zoned for efficiency.
578 Kingston Rd W | Property Enhancements and Capital Improvements
All renovations were completed with permits, now closed. A full site plan and capital improvement documentation are available.
Inside, the build quality reflects long-term thinking. The restoration was undertaken by an award-winning design and general contracting team that owns and operates the space. Reclaimed barn board flooring was de-nailed, planed, and milled into tongue-and-groove planks. Custom cabinetry, integrated appliances, stone countertops, including soapstone and Dekton surfaces, built-in millwork, LED lighting, and carefully concealed electrical outlets were executed with precision. The aesthetic is cohesive, but more importantly, it’s durable.
The garage/workshop includes spray foam insulation, its own electrical breaker panel, and an underground rough-in gas line for future flexibility. In addition, there is a separate clean, heated storage area within the garage. Drainage was engineered with Dutch drains and municipal compliance in mind. These are the details that protect your balance sheet five years from now.
Location supports the fundamentals. The property offers strong visibility along Kingston Road, is within walking distance to historic Pickering Village, and provides convenient access to highways and transit — critical for clients, staff, and suppliers.
For the right buyer, this is about control. Control over your brand environment. Control over your operating costs. Control over your long-term asset.
If you’ve outgrown leased space and want infrastructure that matches the maturity of your business — without inheriting a renovation project disguised as “character” — 578 Kingston Rd W delivers clarity.
The building’s history is intact. The systems are current. The approvals are in place. Now it’s ready for its next chapter.

5 Things We Love
- Volume, Light, and Architectural Presence. Cathedral ceilings, an open main floor, and a loft aligned with the original barn roofline create consistent natural light and a sense of scale that’s difficult to replicate in conventional commercial construction.
- Authentic Structural Heritage. Continuous barn boards run from floor to roof without joints, complemented by exposed structural elements that reflect the integrity of the original build — not cosmetic character, but real construction history.
- Infrastructure That’s Already Been Handled. Major capital components have been updated, including roof, windows, doors, insulation, plumbing, electrical, HVAC, and drainage. The heavy lifting is complete, with permits closed and documentation available.
- Purposeful, Designer-Led Interiors. Executed by an award-winning design and general contracting team, the interiors feature custom cabinetry, integrated appliances, premium stone surfaces, reclaimed barnboard flooring, and built-in millwork — designed for durability as much as visual cohesion.
- Parking, Access, and a Completed Site Plan. A two-car garage/workshop, nine surface parking spaces, delivery access, organized hardscaping, and city-approved site improvements create operational ease from day one.
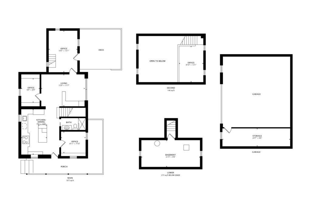
Floor Plans
3-D Walk-through
About Pickering Village and West Ajax
If you spend any time in West Ajax, you start to notice something quickly: it feels established without feeling stuck in the past. Kingston Road has been the spine of the community for more than two centuries, and businesses here benefit from that long-standing visibility. What makes the area appealing is how practical it is with quick access to Highway 401, steady local traffic, and a surrounding population that actually shops and works close to home.
A few minutes away, Pickering Village adds another layer of character. This historic district dates back to the early 1800s, when Quaker settlers built mills and small businesses along Duffins Creek, gradually turning the area into the commercial centre of the original Pickering Township. Today, the heart of the village still runs along Old Kingston Road, where heritage buildings house independent restaurants, service businesses, boutiques, and cafés. It’s one of those places where you’ll find a barber shop next to a local restaurant, a yoga studio down the street, and people who’ve been coming here for years.
What people tend to like most is the scale. Pickering Village is a working main street with a strong sense of community and a steady mix of local businesses that serve the surrounding neighbourhoods. For a business owner, that means something important: this is an area where customers already have the habit of showing up.
Put it all together, and the appeal becomes pretty clear. West Ajax offers the visibility and accessibility that businesses need to operate efficiently, while Pickering Village brings history, personality, and a local customer base that values independent operators. It’s the kind of neighbourhood where a well-run business doesn’t just exist, it becomes part of the fabric of the community.







