Welcome To
270 Indian Grove
The High Park House That Refuses to Blend In.
Send This Listing To A FriendThere are houses near High Park. And then there’s 270 Indian Grove.
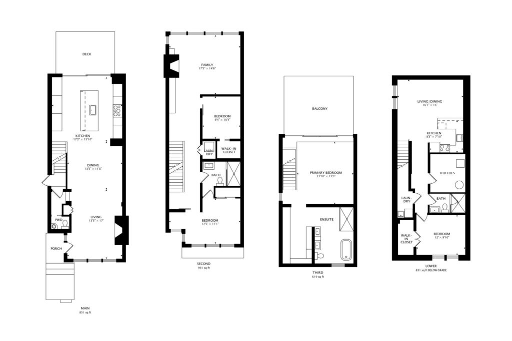
Built in 2016 as a labour of love between a builder and his daughter, this detached three-storey home was never meant to follow a template. Every decision—from the flow of the main floor to the privacy of the third-floor retreat—was considered, refined, and executed with purpose. At 2450 square feet above grade (plus 904 below), it offers scale. But what sets it apart is how that space lives.
The main floor is open without feeling exposed. A three-sided Scandinavian gas fireplace anchors the living area, adding warmth and subtle division. From there, the home moves naturally into a kitchen designed for people who actually cook. Integrated top-of-the-line appliances—including two fridges, a double oven, an appliance garage, a TV that descends from the cabinetry and a massive island make it as functional as it is streamlined.
An oversized sliding wall opens to a covered rear patio, extending the living space outdoors in one fluid motion. There’s a gas line for the BBQ, room for long dinners under cover, and a private backyard anchored by a modern two-car detached garage accessed via laneway. The outdoor space is designed for connection—easy to maintain, yet generous enough to host relaxed evenings with friends and family.
Upstairs, the second floor reflects real family life. Two bedrooms, a full bath, a laundry room, and a generous family room create a dedicated zone for kids, homework, movies, or simply closing the door on the main floor when needed. It’s separation without disconnection.
Then there’s the third floor.
The primary suite occupies its own level—a retreat in the truest sense. A walkout to a spacious, leafy terrace brings in sky and quiet. The walk-in closet is substantial. The ensuite is crisp and modern, with a floating tub and frameless glass shower. It feels elevated, both literally and emotionally.
Throughout the home, floor-to-ceiling windows bring in all-day light. High ceilings add volume. Built-in speakers and heated bathroom floors reflect the kind of detail you only see when a home is built for the people living in it—not for resale.
The finished lower level, with its separate entrance, large den, and full bathroom, adds another layer of flexibility. Guest space, office, teen retreat, future independence—it adapts as life shifts.
And the location delivers what matters. High Park is steps away. Roncesvalles and Bloor West Village are within walking distance. Keele subway station is five minutes on foot. The Gardiner is a five-minute drive when you need to leave the city. It’s a rare combination: green space, independent retail, transit, and highway access, all without compromising architectural integrity.
270 Indian Grove is not trying to replicate the past. It offers something else—light, structure, and intention—right where you want to be.

5 Things We Love
1. The Design Feels Intentional (and Easy). This is the kind of home that looks like it belongs in Architectural Digest, but functions for real life. Clean lines, integrated appliances, built-ins, heated bathroom floors, and built-in speakers aren’t there for show—they make daily living smoother. The kitchen’s massive island, double ovens, two fridges, and appliance garage support serious cooking without visual clutter. It’s polished, but never precious.
2. Light, Volume, and Air Everywhere. Walls of glass, oversized windows, skylights, and high ceilings create an openness you feel immediately. The three-sided Scandinavian fireplace anchors the main floor without interrupting flow. Sightlines run long—from the front living area straight through to the backyard—while floor-to-ceiling glazing on multiple levels keeps the house bright throughout the day. It’s open concept done thoughtfully, not cavernously.
3. The Third-Floor Primary Retreat. An entire level dedicated to the principal bedroom changes how the house lives. Upstairs, a walkout terrace looks out over mature trees. Inside, there’s a substantial walk-in closet and a sleek ensuite with a floating tub and frameless glass shower. It’s private, quiet, and distinctly separate from the rest of the household—an actual retreat, not just a larger bedroom.
4. Indoor–Outdoor Living That Actually Connects. An oversized sliding wall opens the main floor to a covered rear patio, making the transition to the backyard seamless. There’s a gas line for the BBQ and space to host long dinners outdoors. It extends the living area in a practical way—protected from the elements, easy to use, and integrated into the flow of the home rather than tacked on.
5. A Location That Keeps Everything Close. Steps to High Park. A short walk to Roncesvalles and Bloor West Village. Five minutes to Keele subway station. Five minutes by car to the Gardiner. It’s rare to have this level of architectural clarity and still be this connected to transit, green space, independent retail, and easy highway access. You don’t trade design for convenience here—you get both.
Floor Plans
3-D Walk-through
About High Park North
If you’re the kind of person who wants a little bit of everything—big trees, strong coffee, walkable everything, and a real sense of community—High Park North just makes sense. It’s one of those rare Toronto neighbourhoods where the moment you arrive, you feel like you’ve arrived. It’s peaceful without being boring, charming without being fussy, and full of everyday conveniences that make life just… easier.
On one side of the street? High Park—400 acres of trails, gardens, playgrounds, and even a zoo. (Pro tip: the cherry blossom season here actually lives up to the hype.) On the other? Coffee shops, libraries, gyms, and all the low-key essentials—Tim’s runs, spontaneous bookstore visits, and last-minute grocery stops that don’t involve a car. Whether you’re pushing a stroller, walking a rescue pup, or just clearing your head after a long day, this is the kind of neighbourhood where the everyday feels a little more grounded.
You’re a five-minute walk from Bloor West Village, where the boutiques are actually good, the bakeries smell like butter, and there’s always a quiet table waiting somewhere. Need to head downtown? The Gardiner’s close. So are Runnymede and High Park subway stations. Want to shake things up? The Junction and Humber River trails are just around the corner. It’s the kind of location that lets you choose your own adventure—without ever straying far from home.
Living in High Park North means living in a real neighbourhood. The kind with Pinterest-worthy houses, front porch conversations, and neighbours who shovel your walkway when you’re away. It’s a place where city living meets nature, design meets function, and your day-to-day just works.





