Welcome To
317 Boon Ave
Detached Living with a Fully Separate Lower Level and Laneway Garage
317 Boon Ave is a detached home that balances space with flexibility, delivering a layout that works today and leaves room for how you might use it tomorrow.
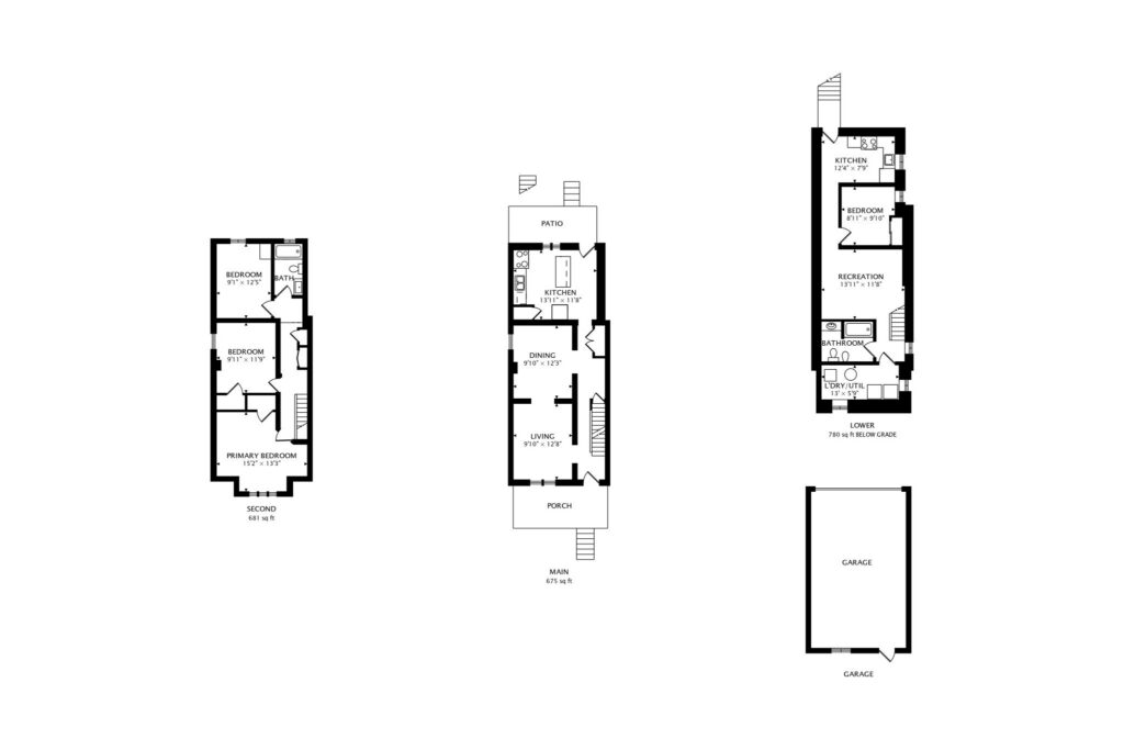
Inside, the main floor is organized around how people actually live. The living room opens naturally into a generous dining area, creating a continuous space that can shift between everyday use and hosting without needing to be rethought. It’s open where it benefits you, but still defined enough to feel intentional.
At the rear, the kitchen is positioned with purpose. Finished with granite countertops and a ceramic backsplash, it’s both practical and durable, while keeping the main living areas free from congestion. Main-floor laundry is integrated here as well—simple, functional, and exactly where it should be.
Upstairs, three well-proportioned bedrooms provide a clear and comfortable division between shared and private space. Each room receives natural light, and the layout supports a range of uses depending on how you live—whether that’s all bedrooms, or a combination of sleeping and working space.
The lower level introduces a different layer of utility. With its own rear entrance, full kitchen, living area, bedroom, laundry, and a 5-piece bathroom, it operates as a self-contained space within the home. It’s not a legal secondary suite, but it’s fully formed and ready to be used in a way that suits the owner—whether for extended family, shared living, or future planning.
Outside, the property continues to deliver usable space. A large front porch and a covered rear porch extend how the home functions beyond its interior, offering sheltered outdoor areas at both ends. The backyard provides enough room to enjoy without becoming a burden to maintain.
At the rear, a detached two-car garage accessed via laneway adds another layer of practicality. Secure parking is only part of it—this is also space for storage, projects, or simply keeping things out of the main house.
Read the complete Laneway Suite Feasibility Study for 317 Boon Ave here.
Set within Caledonia-Fairbank, the location supports day-to-day life with ease. St. Clair West is a short walk away, offering a steady mix of cafés, restaurants, and local shops. Earlscourt Park adds accessible green space, while nearby TTC routes and connections to the subway and Allen Road make commuting straightforward.
317 Boon Ave is a property that doesn’t rely on a single use case. The home is move-in ready, allowing you to settle in without needing to take on immediate work or uncertainty. It gives you a solid, well-functioning home with the added benefit of space that can evolve alongside you.

5 Things We Love
- A Fully Separate Lower Level. With its own entrance, kitchen, laundry, and bathroom, this space opens up multiple ways to use the home over time.
- Main Floor That Feels Natural to Live In. The connection between living and dining is seamless without feeling overexposed or undefined.
- Laneway-Access Two-Car Garage. Beyond parking, this adds real utility—storage, workspace, and flexibility that’s hard to find.
- Outdoor Space at Both Ends of the Home. Front and rear covered porches, plus a usable backyard, create multiple ways to step outside.
- Move-In Ready Condition. The home is ready to be lived in as-is, removing the need for immediate projects or upgrades.
Floor Plans
3-D Walk-through
About Caledonia-Fairbank
Caledonia-Fairbank is a neighbourhood that functions in a steady, reliable way. It’s established, residential, and shaped by people who live here long-term.
St. Clair West acts as the local anchor—lined with independent cafés, restaurants, and everyday shops that make it easy to build routines close to home. It’s not a strip built for occasional visits; it’s one that supports regular, daily use.
Earlscourt Park adds meaningful green space to the area. It’s large enough to accommodate everything from casual walks to more active use, giving the neighbourhood a sense of openness that complements its residential streets.
Transit is integrated into daily life here. TTC access is within walking distance, with connections that link easily to the subway. For drivers, Allen Road is close enough to simplify longer commutes without dominating the neighbourhood itself.
The area’s housing stock is a mix of older homes and updated properties, giving it a layered, lived-in feel. Detached homes like 317 Boon Ave offer a level of independence that’s increasingly valued—both in terms of space and how the property can be used.
This is a neighbourhood chosen for its balance: connected but not hectic, practical without feeling limited.
